private beauty clinic, mestre

In collaboration with Arter&Citton

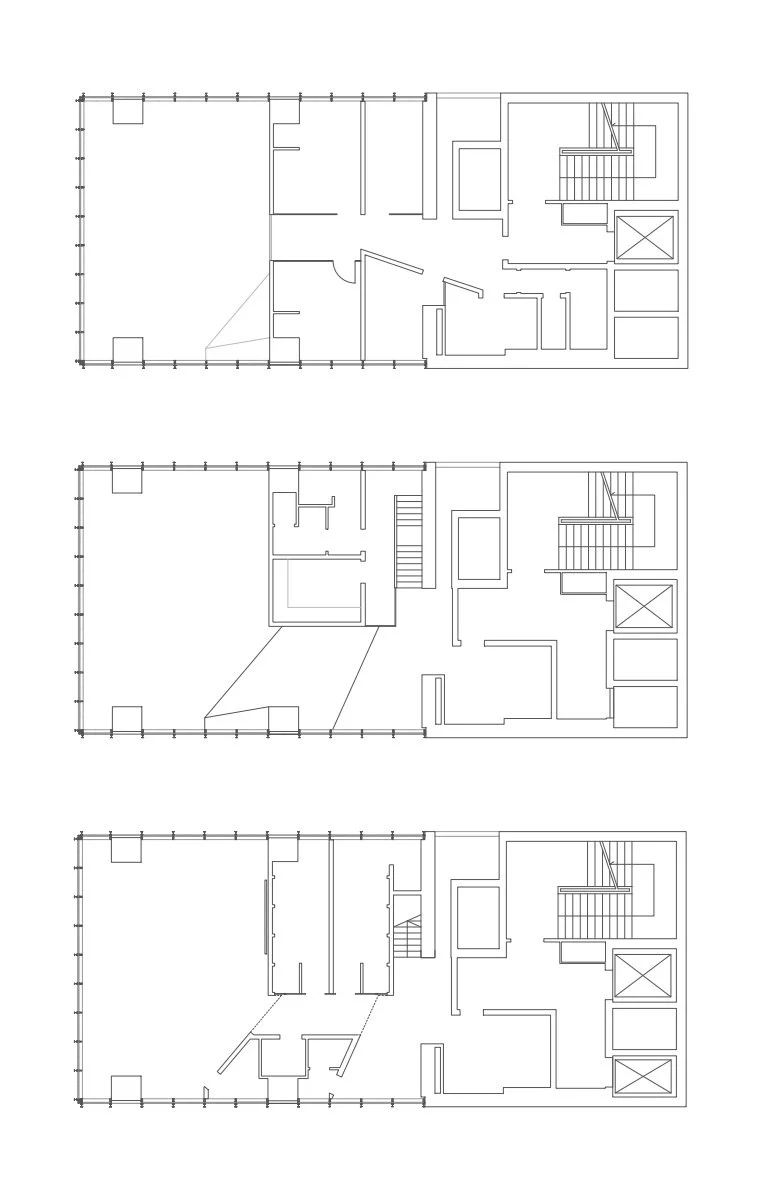
The project involves the interior design of a private aesthetic clinic located in a high-rise building in the suburban area of Venice. The intervention was based on a conceptual redesign aimed at optimising spatial organisation and increasing the usable floor area. A new intermediate platform was introduced within a double-height space, allowing for an expanded programme and a clearer functional hierarchy across levels. The design focused on the careful integration of the additional structure within the existing volume, maintaining spatial continuity while enhancing usability. All interior spaces were reconfigured and designed to support the specific operational requirements of the clinic, with particular attention to circulation, privacy and spatial clarity. The overall approach balances functionality with a calm and refined atmosphere, contributing to a controlled and comfortable environment for both staff and visitors.

Previous
Previous

private appartment, venice

Next
Next

htm suite, mestre