private appartment, venice

In collaboration with Arter&Citton

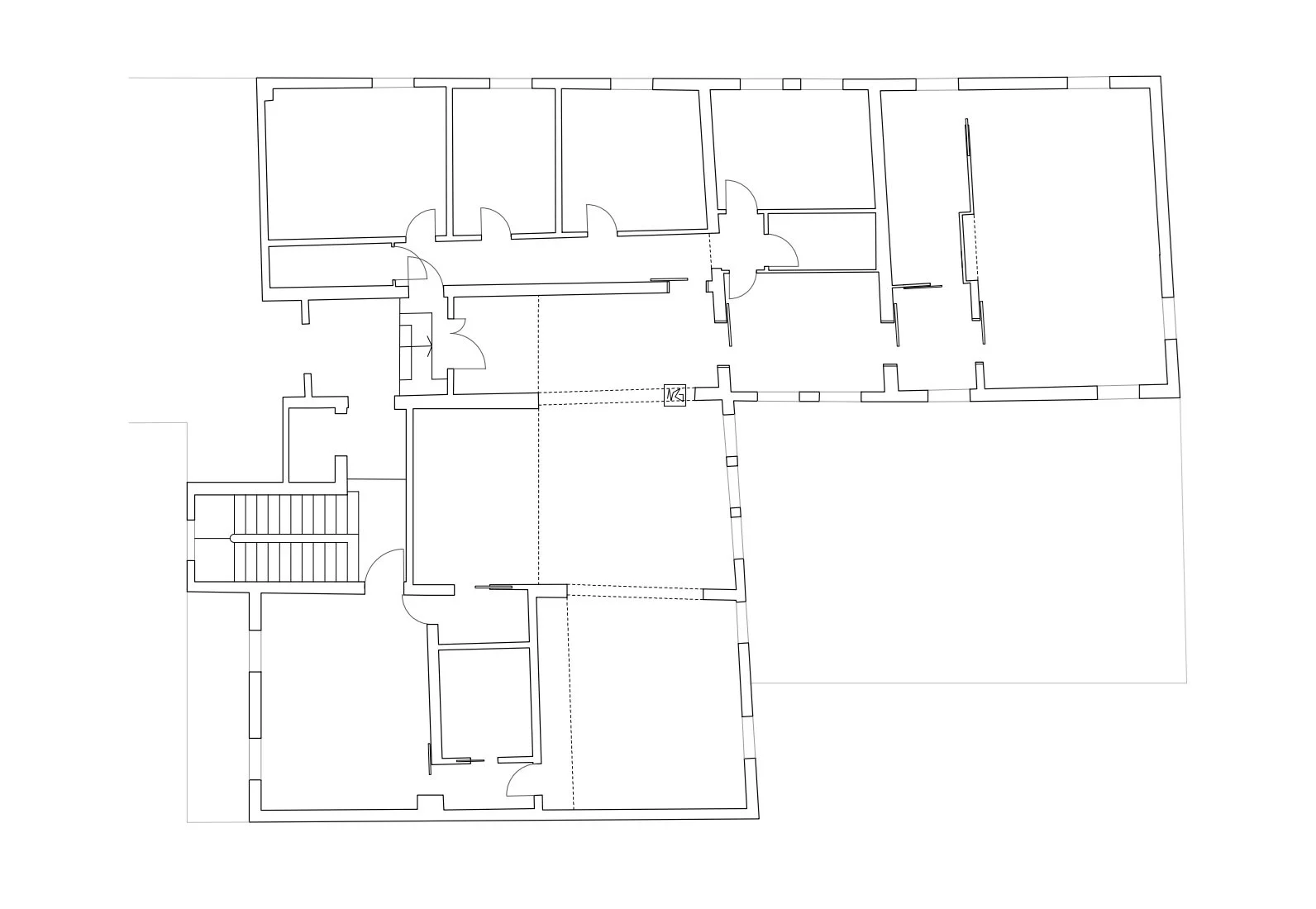
The project involves the renovation of a private apartment located in close proximity to Teatro La Fenice in Venice. The intervention was conceived to accommodate the needs of a five-member family, requiring a careful balance between functionality, spatial comfort and the specific characteristics of the historic urban context. The existing layout was re-evaluated and reorganised to support contemporary family living, with particular attention given to the relationship between shared and private spaces. The design focused on improving spatial clarity, circulation and usability, while maintaining a calm and coherent atmosphere throughout the apartment. Material choices and interior elements were selected to create a sense of continuity and durability, supporting everyday use while remaining understated in expression. The renovation respects the architectural setting of Venice, integrating modern living requirements within a refined and balanced interior framework. The project reflects a thoughtful approach to domestic space, where spatial organisation, proportion and material consistency contribute to a comfortable and adaptable living environment for a growing family.

Previous
Previous

private appartment, rožna dolina

Next
Next

private beauty clinic, mestre