private appartment, lido venice

In collaboration with Arter&Citton

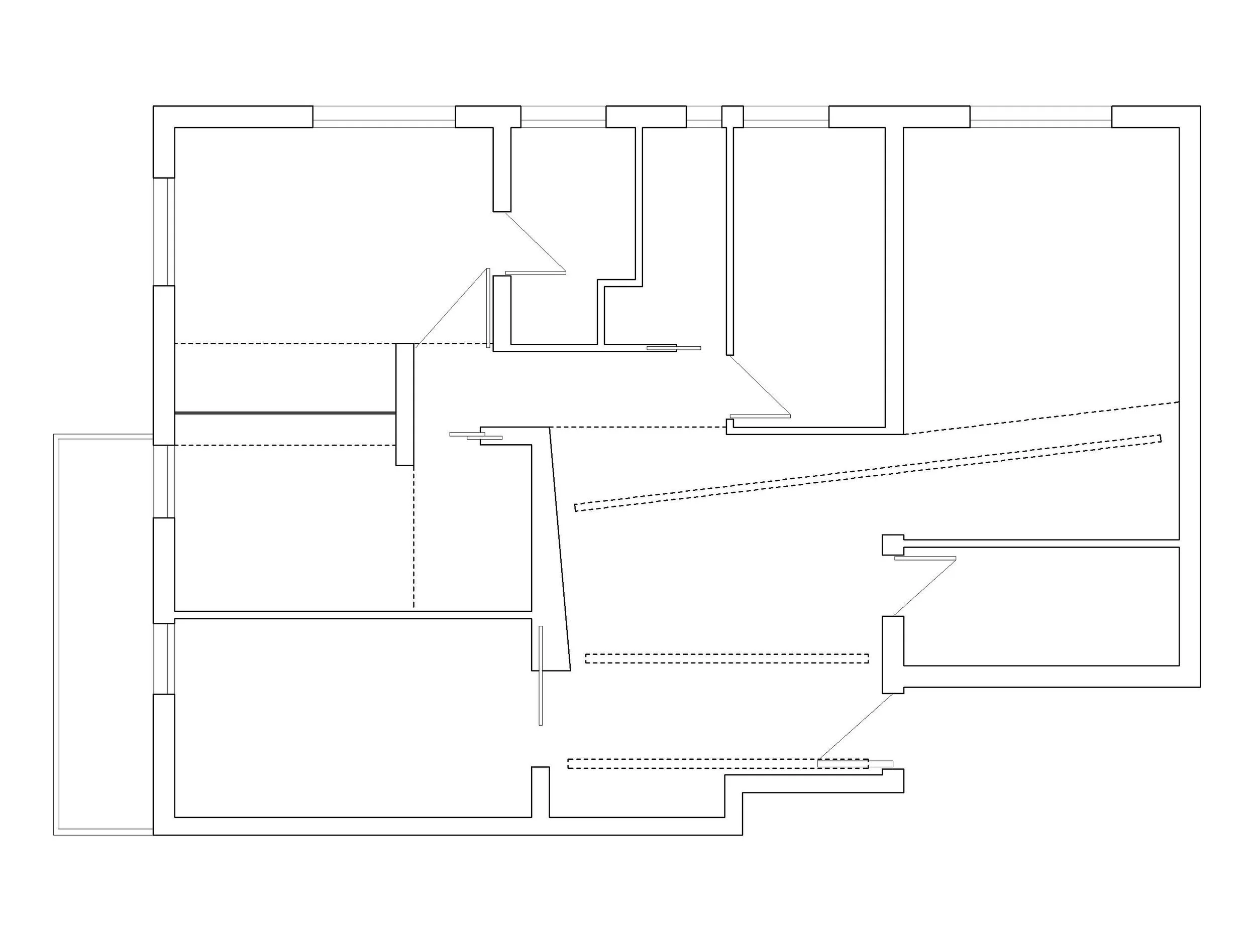
The project involves the reconstruction of a private apartment located on the Lido of Venice, where only the existing kitchen was retained. The renovation included the creation of two new bathrooms and the redesign of the living and sleeping areas, incorporating a study space. The new interior layout was conceived as a sequence of interconnected spaces that flow organically into one another. Openings, lighting design and subtly defined transitions were used to establish spatial continuity while maintaining functional clarity. The intervention balances renewal with restraint, allowing the apartment to adapt to contemporary living while preserving a sense of calm and coherence within its historic and unique setting.

Previous
Previous

private office, mestre

Next
Next

private appartment, ankaran